Powerturn 1-leaf swing door drive system * Electromechanical swing door drive for single leaf doors weighing up to 600 kg
- Smart swing function for easy manual door opening
- Closing force of EN4-7 with variable adjustment
- Opening and closing speed can be individually adjusted
- Mechanical latching action when operated without current, and electrical automatic unit latching action in regular operation, which accelerates the door shortly before it is closed
- Low-energy function opens and closes the door with reduced speed, fulfilling the highest safety demands
- Servo function for motorized support when manually opening the door
- Vestibule function controls the opening and closing of two consecutive doors (interlocking door system)
- Obstacle detection detects an object through contact and stops the opening or closing process
- Automatic reversing detects an obstacle and returns to the opening position
- Push & Go function triggers the automatic drive following light manual pressure on the door leaf
- Drive can be used with roller guide rail or link arm
- Optional radio reception board for wireless activation by radio transmitter
- Hold-open function can be activated by manually pulling the door leaf closed
- Reset of the hold-open system by manually opening the door leaf to an opening angle of 80° or changing the mode of operation
Application Areas
- Single-action, single leaf, right and left closing doors
- Single-action doors up to 1600 mm leaf width or 600 kg weight
- Minimum leaf width 800 mm
- Interior and exterior doors with high access frequency
- Door leaf installation and transom installation
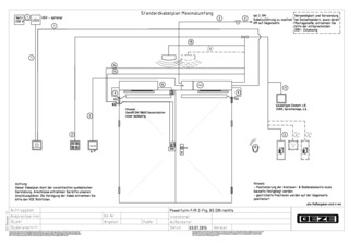
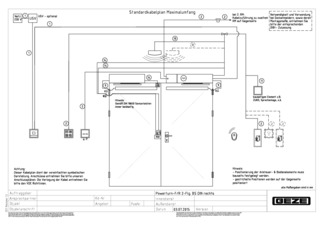
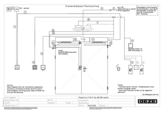
Installation situations in reference objects and videos
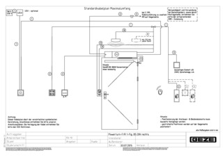
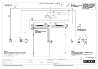
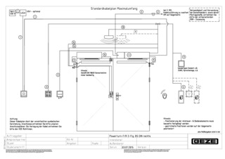
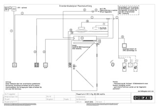
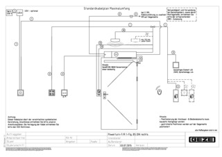
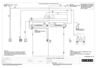
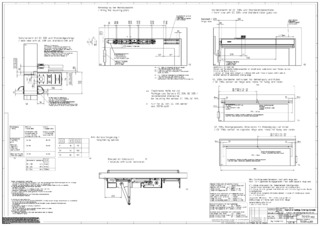
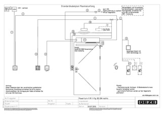
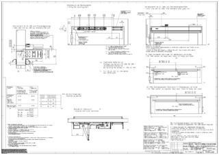
Technical data
Powerturn 1-leaf swing door drive system | |
Height | 70 mm |
Depth | 130 mm |
Length min. | 720 mm |
Leaf weight (max.) 1-leaf | 600 kg |
Distance centre door hinge-drive axis (min.-max.) 2-leaf, link arm | 1600 mm - 3200 mm |
Distance centre door hinge-drive axis (min.-max.) 2-leaf, roller guide rail | 1600 mm - 3200 mm |
Leaf width (min.-max.) | 800 mm - 1600 mm |
Reveal depth (max.) | 560 mm |
Drive type | Electromechanical |
Opening angle (max.) | 136 ° |
Spring pre-load | EN4 - EN7 |
DIN left | Yes |
DIN right | Yes |
Transom installation opposite hinge side with link arm | Yes |
Transom installation opposite hinge side with roller guide rail | Yes |
Transom installation hinge side with roller guide rail | Yes |
Door leaf installation opposite hinge side with roller guide rail | Yes |
Door leaf installation hinge side with roller guide rail | Yes |
Door leaf installation hinge side with link arm | Yes |
Mechanical latching action | Yes |
Electrical latching action | Yes |
Disconnection from mains | Main switch in the drive |
Activation delay (max.) | 10 s |
Operating voltage | 230 V |
Power rating | 200 W |
Power supply for external consumers (24 V DC) | 1200 mA |
Service temperature | -15 - 50 °C |
IP rating | IP30 |
Mode of operation | Automatic, Permanently open, Shop closing, Night, Off |
Type of function | Fully automatic |
Automatic function | Yes |
Low-energy function | Yes |
function smart swing | Yes |
Servo function | Yes |
Key function | Yes |
Obstacle detection | Yes |
Automatic reversing | Yes |
Push & Go | adjustable |
Operation | Programme switch DPS, MPS programme switch, Programme switch integrated in the drive |
Parameter setting | GEZEconnects (PC + Bluetooth), Service terminal ST 220, Programme switch DPS |
Standard conformity | DIN EN 16005 |
Smoke switch integrated | Yes |
Downloads
LABELLING OBLIGATION: © Nicolas Thome / GEZE GmbH
LABELLING OBLIGATION: © GEZE GmbH
LABELLING OBLIGATION: © GEZE GmbH
LABELLING OBLIGATION: © GEZE GmbH
LABELLING OBLIGATION: © GEZE GmbH
LABELLING OBLIGATION: © GEZE GmbH
LABELLING OBLIGATION: © GEZE GmbH
LABELLING OBLIGATION: © GEZE GmbH
LABELLING OBLIGATION: © GEZE GmbH
LABELLING OBLIGATION: © GEZE GmbH
LABELLING OBLIGATION: © GEZE GmbH
LABELLING OBLIGATION: © GEZE GmbH
LABELLING OBLIGATION: © GEZE GmbH
LABELLING OBLIGATION: © GEZE GmbH
LABELLING OBLIGATION: © GEZE GmbH
LABELLING OBLIGATION: © GEZE GmbH
LABELLING OBLIGATION: © GEZE GmbH
LABELLING OBLIGATION: © GEZE GmbH
LABELLING OBLIGATION: © GEZE GmbH
LABELLING OBLIGATION: © GEZE GmbH
Variants & Accessories
* Notice about the products displayed
The products mentioned above may vary in form, type, characteristics and function (design, dimensions, availability, approvals, standards etc.) depending on the country. For questions please contact your GEZE contact person or send us an E-Mail .