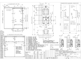
Glass clamping plate 30 mm set, continuous cover

Glass clamping plate 30 mm set, without cover * Glass clamping plate 30 for leaf weights up to 80 kg without cover

Glass clamping plate 30 mm set, without cover Accessories Perlan
  • Clamping fitting for glass panels with leaf weights up to 80 kg
Contact us

Application Areas

  • For leaf weights up to 80 kg
  • Perlan sliding door fitting
  • For Rollan sliding door fitting

Technical data

Glass clamping plate 30 mm set, without cover
Pane thickness 8 - 12 mm

Downloads

Variants & Accessories

Contact

GEZE Central +65-684-613-38